Weddings at Scarlet Hall
Malpas, Chester, Cheshire, UK
Enveloped by 12 acres of private estate in Cheshire, weddings at Scarlet Hall offer a verdant and historic setting. From moonlit speeches cocooned in a red apple orchard to dancing beneath timber beams, this country house wedding venue promises a quintessentially romantic setting come rain or shine.
Floor plans
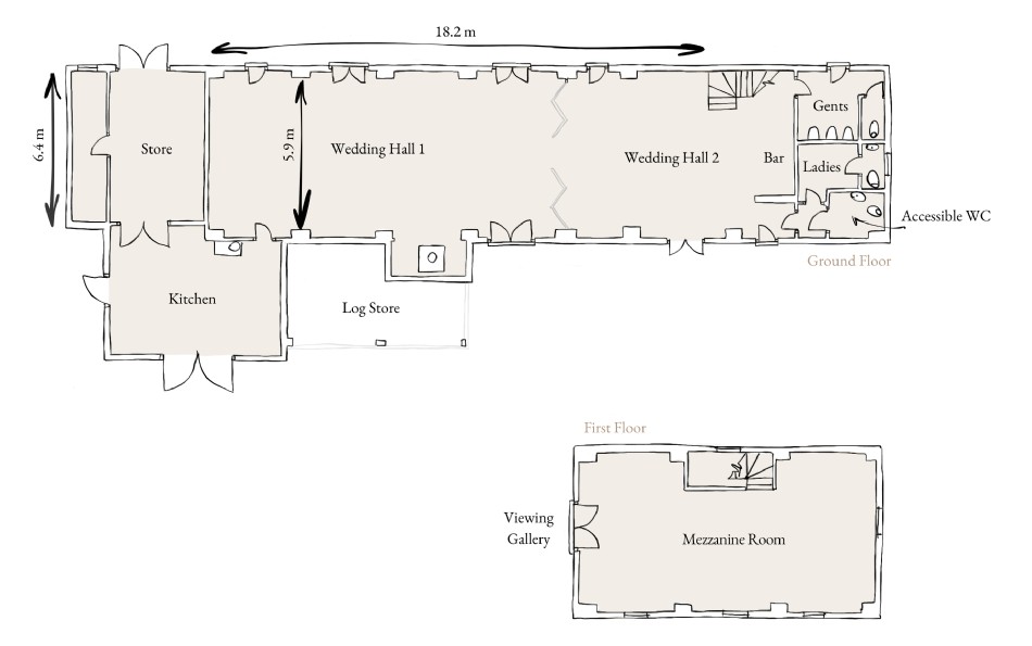
We have created these floor plans to help you visualise the property's layout. Whilst we strive to be as accurate as possible, floor plans are for illustrative purposes only and variations may occur. If you would like clarification on any aspect, our team is always happy to assist.
Scarlet Hall Site Map

Main House, Ground Floor

Main House, First Floor

Coach House, Ground Floor

Coach House, First Floor

Wedding Barn

Wedding Barn

Collections > Dog-friendly escapes > UK > Cheshire > Chester > Weddings at Scarlet Hall > Floor Plans
Related Collections
Disclaimer: These particulars, whilst believed to be accurate, are set as a guideline so should not be relied upon as a statement of fact. The photographs show aspects of the property at the time they were taken and it should not be assumed that the property remains precisely as displayed. If there are points of particular importance that need clarifying before you book, please contact us.





