The Shearling
Uppingham, Rutland, UK
The Shearling once sheltered animals grazing the meadows above Eyebrook Reservoir and belongs to a family who have lived in the area since 1575. Following a meticulous renovation, this secluded barn in Rutland has been reimagined as a luxury self-catering retreat. Think tranquil interiors adorned with British art and a serene garden designed by a Chelsea Flower Show winner, complete with a heated infinity pool.
Floor plans
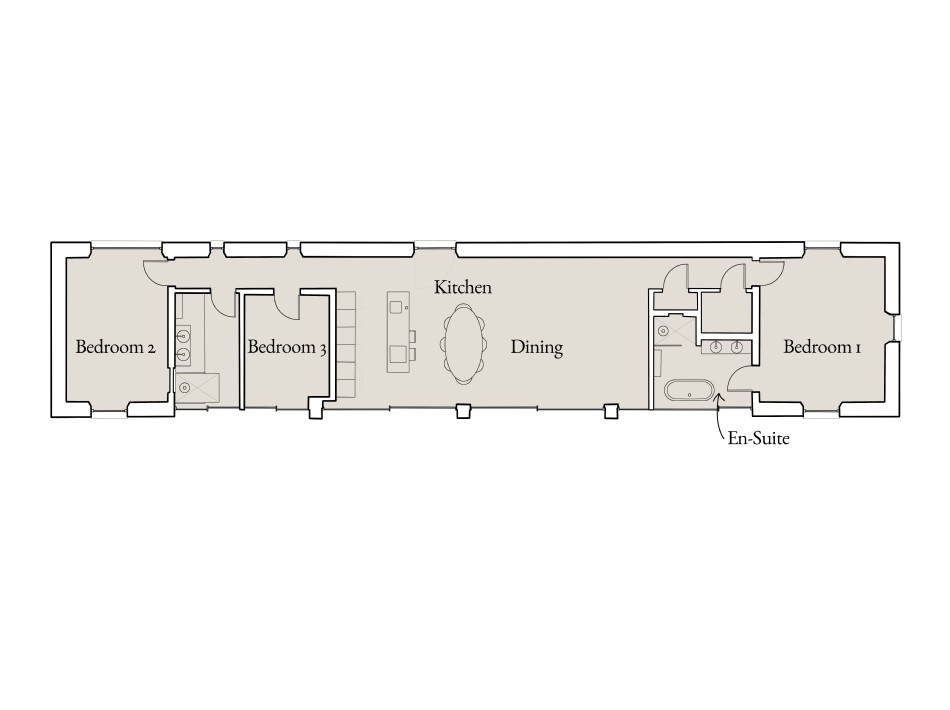
We have created this floor plan to help you visualise the property's layout. Whilst we strive to be as accurate as possible, floor plans are for illustrative purposes only and variations may occur. If you would like clarification on any aspect, our team is always happy to assist.
The Shearling Floor Plan


Bedroom One
Super-king Bedroom
This ground floor bedroom features a super-king bed and en suite with a deep copper bathtub, WC and separate rainfall shower.

Bedroom Two
King-size Bedroom
This king-size bedroom on the ground floor features a king-size four poster bed. This bedroom shares a family shower room with bedroom three.

Dining Room
There's an emphasis on high-quality materials and craftsmanship

Family Shower Room
The family shower room has direct access to the terrace, making it ideal for use before and after a swim.

Bedroom Three
Twin Bedroom
This minimalistic twin bedroom shares a family shower room with the second bedroom.
Collections > Cottages with fireplaces > UK > Rutland > Uppingham > The Shearling > Floor Plans
Related Collections
Disclaimer: These particulars, whilst believed to be accurate, are set as a guideline so should not be relied upon as a statement of fact. The photographs show aspects of the property at the time they were taken and it should not be assumed that the property remains precisely as displayed. If there are points of particular importance that need clarifying before you book, please contact us.





